欢迎您访问浙江自考网!网站为考生提供浙江自考信息服务,供学习交流使用,非政府官方网站,官方信息以浙江省招生考试院为准 登录  网站导航

浙江自考网

自考热线:16657169113

自考办电话 | 在线提问 | 公众号

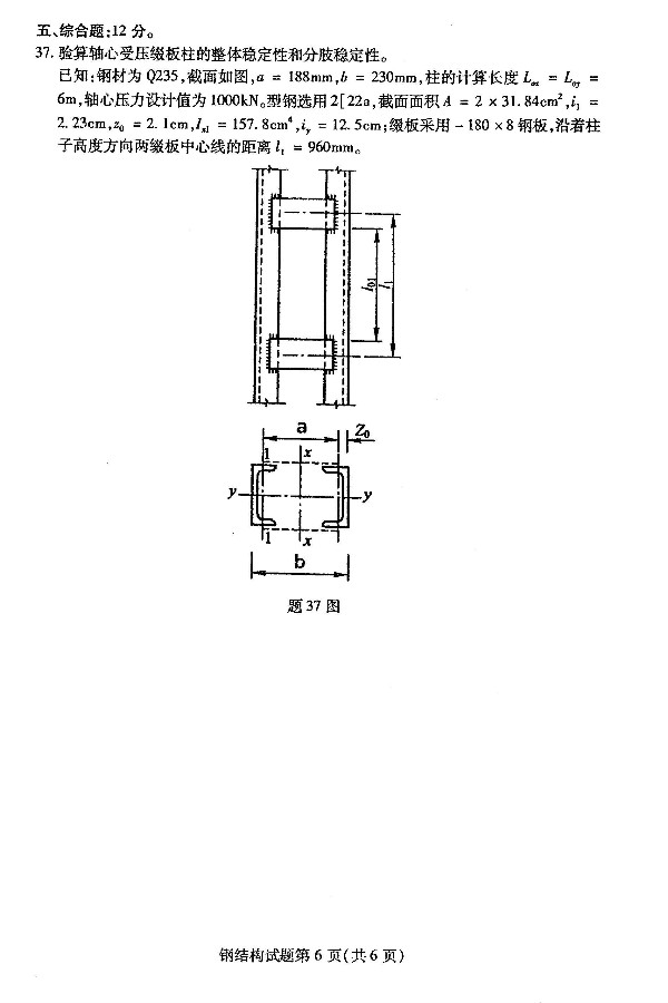
2019年4月自考02442钢结构真题

编辑整理:浙江自考网 发表时间:2019-11-28   【

01_01.jpg
01_02.jpg
02_01.jpg
02_02.jpg
03_01.jpg

03_02.jpg



浙江自考网课程中心

浙江自考网声明:

1、由于各方面情况的调整与变化,本网提供的考试信息仅供参考,考试信息以省考试院及院校官方发布的信息为准。

2、本网信息来源为其他媒体的稿件转载,免费转载出于非商业性学习目的,版权归原作者所有,如有内容与版权问题等请与本站联系。

浙江自考便捷服务

浙江自考网微信交流群